МОСКВА И МО

СОЧИ

Вертикальная планировка

Компания DOM OZ выполняет полный цикл по
преобразованию рельефа, от плана до сдачи
участка, полностью подготовленного для
следующего этапа работ.
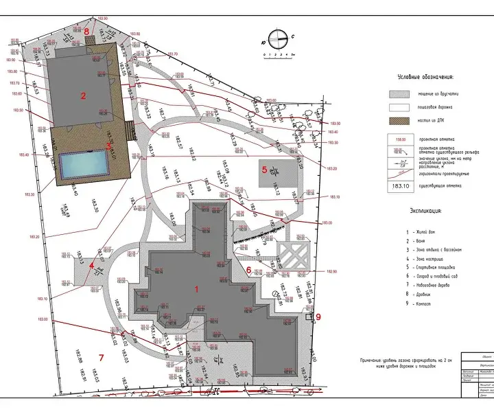
Image description

Вертикальная планировка с DOM OZ

Экономия и точный расчёт

Благодаря инженерным данным и точным методам вертикальной планировки, заказчик получает прозрачный бюджет без непредвиденных затрат на вывоз или подсыпку грунта.

Эстетика и функциональность

Планировка рельефа создаёт гармоничный внешний вид, а уклоны и террасы делают территорию визуально объёмной и удобной для эксплуатации.

Безопасность и долговечность

Правильное устройство вертикальной планировки защищает фундамент и дорожки от деформации, а система водоотвода предотвращает застой воды.

Интеграция в общий проект

DOM OZ объединяет проектирование вертикальной планировки с архитектурой, озеленением и инженерными системами, обеспечивая комплексное благоустройство участка.

Вертикальная планировка — это комплекс инженерных и ландшафтных решений, направленных на создание безопасного, устойчивого и эстетичного рельефа участка. Компания DOM OZ выполняет полный цикл работ под ключ. Мы разрабатываем точный план и схему планировки, определяем высотные отметки, проектируем систему водоотвода и выполняем устройство земляных площадок с учётом всех требований застройки.

В работу включаются этапы: анализ рельефа, расчет грунта, моделирование уклонов и организация дренажных каналов.

Мы разрабатываем схемы вертикальной планировки с инженерной точностью и эстетическим подходом, чтобы каждая площадка, уклон и терраса выглядели гармонично и служили десятилетиями.

DOM OZ — ваш партнёр в организации вертикальной планировки участка: от анализа рельефа и расчёта отметок до устройства готового ландшафта.

Оставить заявку

Оставьте свои контактные данные и мы свяжемся с вами в ближайшее время

Вы используете запрещённые символы!