МОСКВА И МО

СОЧИ

Проектирование земельных участков

Создаём продуманные пространства, где
каждая зона работает на комфорт, эстетику
и функциональность.
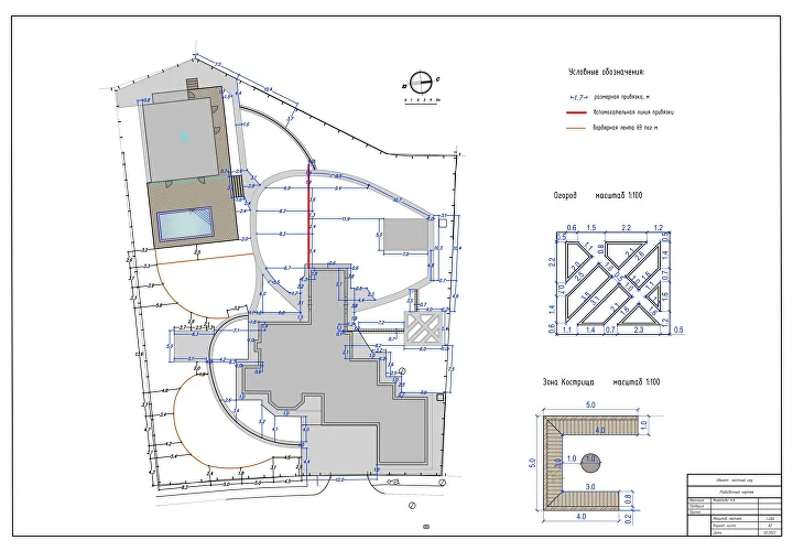
Image description

Преимущества проектирования в DOM OZ

Интеграция архитектуры и ландшафта

Мы выполняем проектирование загородных участков с учётом планировки дома, рельефа и природных особенностей территории. Каждый проект земельного участка с домом создаётся так, чтобы архитектура, инженерия и природа образовывали единую композицию.

Полный цикл работ

От анализа территории до 3D-визуализации — мы разрабатываем проект планировки территории земельного участка, включающий зонирование, размещение построек, дорожек, водоёмов и инженерных коммуникаций.

Индивидуальный подход

Наши специалисты создают дизайн-проект земельного участка под конкретные задачи: жилое строительство, отдых, озеленение или хозяйственная зона. Можно заказать проект участка с домом как отдельную услугу или в составе общего благоустройства.

Прозрачная стоимость

Мы заранее рассчитываем бюджет и объясняем, сколько стоит заказать проект участка на участке. Вы получаете точную смету без скрытых расходов, а цена фиксируется на этапе утверждения проекта.

Проектирование земельных участков

Уважаемые клиенты!

Компания DOM OZ предлагает профессиональные услуги по проектированию земельных участков с жилыми домами и ландшафтными объектами. Мы создаём комплексные решения, в которых продуман каждый метр пространства — от планировки до инженерных деталей.

Современный проект загородного участка — это не просто схема с домом и дорожками. Это продуманный план, объединяющий архитектуру, ландшафт и коммуникации в единое целое. Грамотно выполненное проектирование территории земельного участка позволяет рационально использовать пространство, избегать ошибок при строительстве и заранее рассчитать нагрузку на инженерные сети.

Специалисты DOM OZ выполняют:

  • анализ рельефа и геологических условий;
  • проектирование участка с домом и инфраструктурой;
  • разработку проекта планировки земельного участка с учетом норм СНиП и удобства эксплуатации;
  • создание дизайн-проекта участка с визуализацией будущего пространства;
  • проект застройки земельного участка — размещение дома, бани, гаража, дорожек и зон отдыха.

Мы готовы составить проект участка любой сложности — от компактных территорий до масштабных владений. При необходимости создаём проектирование земельного участка с жилым домом как часть общего архитектурно-ландшафтного решения.

Компания DOM OZ разрабатывает проекты, которые не просто украшают, а делают участок удобным, безопасным и логичным. Мы превращаем землю в пространство, где всё на своём месте.

Оставить заявку

Оставьте свои контактные данные и мы свяжемся с вами в ближайшее время

Вы используете запрещённые символы!